Fitness Centre Renovation Contractors ✔️ Toronto & GTA
Specializing in fitness centre millwork, renovations and construction in Toronto and the GTA, our gym renovation contractors deliver high-quality space remodelling.
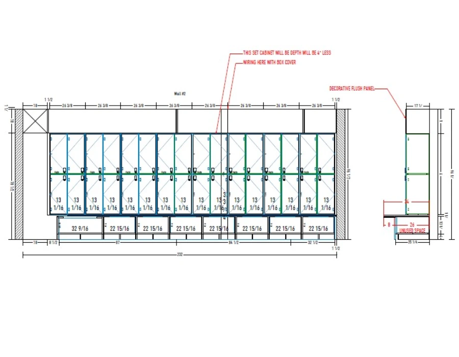
Our Featured Gym Millwork & Renovation Project
Our Gym Millwork Fabrication Process
This gym project highlights our full millwork process, starting with detailed shop drawings to align design with site conditions and client needs. We handled the space design to optimize layout, functionality, and flow within the gym environment. Once approved, we moved into fabrication, building each millwork component with precision in our shop. Our team also managed the renovation phase, preparing the space and coordinating with other trades. The project was completed with on-site installation, ensuring every element was fitted cleanly and accurately, as shown in the project photos.




Who We Serve
We support architects, designers, trades & individual clients with design, drafting, engineering & technical expertise to ensure accuracy, coordination and efficiency at every stage of the commercial project.
Early-Stage Budgeting
We provide in-depth estimates within 3–4 business days, outlining all project details including materials, scope and timelines based on your plan design documentation to keep your project moving forward without delay.
In-House Expertise
With our in-house design support services, fully equipped millwork fabrication shop, project managers and general contractors, we maintain full control over the project’s scope, ensuring high-end results.
Most fitness centre renovations in Toronto can cost between $60 and $250 per square foot, depending on whether it’s a basic update or a complete overhaul involving architectural design, structural framing, custom millwork, rough-ins and other interior finishing.
| Business Size (sq ft) | Average Starting Cost |
|---|---|
| 1,000 | $75,000 – $150,000+ |
| 2,000 | $150,000 – $300,000+ |
| 3,000 | $220,000 – $500,000+ |
| 5,000+ | $400,000 – $900,000+ |
At 1BENMU, we believe in providing clear and transparent cost estimates for every fitness centre renovation project, and our approach to pricing is built on detailed assessments, open communication, and flexibility to meet your budgetary needs.
Detailed Cost Estimates: We provide precise, itemized estimates based on the scope of your fitness centre renovation, whether it’s a basic upgrade or a full-scale remodelling. Our estimates cover all aspects, from materials to labour, so you know exactly what to expect upfront.
Open Communication and Budget Management: Throughout the project, we maintain clear and consistent communication regarding costs. If any adjustments are needed, we will discuss them with you to ensure that the project stays within your budget without compromising on quality.
Flexible Solutions for All Budgets: We offer a range of solutions that can be tailored to fit your specific budget, providing value whether you’re looking for minimal updates or a complete overhaul.
Initial Consultation and Assessment: Our process begins with an in-person meeting at our shop located at 1710 Midland Ave in Scarborough, ON or a virtual meeting to discuss your vision, budget, and specific requirements, followed by a detailed site visit to assess the current condition of your fitness centre and ensure we fully understand your goals.
Design Support and Shop Drawings: Our fitness centre design support team develops initial concepts in coordination with your architect or interior designer to align with your vision and address your functional needs. Once the initial concepts are approved, we create detailed architectural drawings that provide a clear plan for the entire renovation process.
Fitness Centre Construction Permits: After finalizing the budget and plans, we handle all necessary permits and approvals to ensure compliance with local regulations. We can manage the entire permitting process on your behalf or coordinate directly with your assigned architect if they are handling the submissions.
Demolition and Construction: The construction phase begins with the demolition of existing structures that are no longer needed, ensuring the space is prepared for subsequent work. Following demolition, we undertake structural work, which may include framing or reinforcing wall structures, along with rough-ins such as electrical, HVAC, and plumbing installations.
Millwork Fabrication: While our contractors prepare the space, our in-house millworkers begin fabricating all required wood elements for your fitness centre, based on the approved shop drawings. Using advanced CNC machinery, each component is precisely cut, assembled, and finished in our shop to ensure accurate on-site installation and a consistent, high-quality result.
Interior Finishes: Once the core structural and systems work is complete, we move on to interior finishing, including drywall and flooring installation to create the desired room configurations. Our fitness centre contractors also handle painting, installation of millwork components, fixtures, and any custom elements specified in the design plan.
Final Inspection and Handover: As the fitness centre renovation project nears completion, a thorough inspection is conducted to ensure all work meets our high standards and your expectations. We then conduct a final walkthrough with you to ensure every detail aligns with your vision and requirements. Upon your approval, we will officially hand over the renovated fitness centre space.
Toronto & GTA
- Ajax
- Aurora
- Brampton
- Bridle Path
- Casa Loma
- Don Mills
- East York
- Etobicoke
- Forest Hill
- Golden Mile
- Hoggs Hollow
- Kingsway South
- Lawrence Park South
- Leaside
- Lytton Park
- Markham
- Milton
- Mississauga
- Newmarket
- North York
- Nortown
- Oakville
- Oshawa
- Pickering
- Richmond Hill
- Rosedale
- Scarborough
- St. Andrew-Windfields
- Stouffville
- Summerhill
- The Beaches
- Thornhill
- Vaughan
- Willowdale
- Woodbridge
- Yonge-Eglinton
- Yonge-St. Clair
- York Mills
- Yorkville
Outside the Greater Toronto Area (depending on the project)
- Acton
- Alliston
- Angus
- Barrie
- Bolton
- Bradford
- Burlington
- Caledon
- East Gwillimbury
- Georgetown
- Georgina
- Guelph
- Hamilton
- Innisfil
- King City
- Kitchener
- London
- New Tecumseth
- Nobleton
- Orangeville
- Schomberg
- Uxbridge
- Waterloo
- West Gwillimbury
Let Us Create Something Unique For You!
Discover more commercial contracting projects or learn more about our commercial renovation and millwork services.